Yuantai BetterCrane | Energy-Saving | Space-Saving | Cost-Efficient | CE/ISO/EX

yuantai crane
yuantai crane
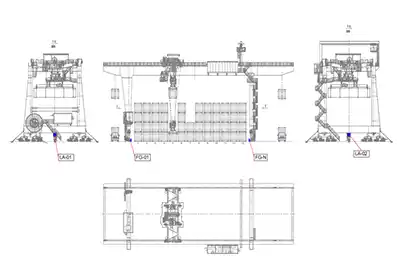
Choosing the Right Crane for Steel Billet Handling Overhead Crane

Choosing the Right Crane for Steel Billet Handling Overhead Crane

May-27

Practical guide to help you compare electromagnetic & mechanical grabs for safe, efficient steel billet lifting and storage. Get billet handling crane!

Why Your Input Matters in Steel Handling Crane Specs

Why Your Input Matters in Steel Handling Crane Specs

May-27

Discover how accurate steel product details help design safer, more efficient overhead cranes for handling steel bars, pipes, slabs& coils. Get you crane!

Cleanroom-Compatible Explosion-Proof Hoists: Safety & Cleanliness

Cleanroom-Compatible Explosion-Proof Hoists: Safety & Cleanliness

May-26

Learn key features, benefits & selection tips for safe, clean, explosion-proof hoists in sensitive industrial environments. Get cleanroom chain hoist!

Choosing the Right Explosion-Proof Hoist for Hazardous Gas Zones

Choosing the Right Explosion-Proof Hoist for Hazardous Gas Zones

May-23

Learn key factors,ie. zone classification, lifting capacity, certification & control option to select a safe explosion-proof hoist. Get your exproof hoist!

Explosion-Proof Crane Cable Features: 40-Ton Overhead Crane for Germany

Explosion-Proof Crane Cable Features: 40-Ton Overhead Crane for Germany

May-22

Explore key cable features ensuring safe, reliable operation of a 40-ton explosion-proof overhead crane tailored for German industrial standards.

40 Ton Explosion-Proof Bridge Crane Weld Inspection Report

40 Ton Explosion-Proof Bridge Crane Weld Inspection Report

May-21

Ultrasonic testing confirms flawless welds on eot crane components, ensuring safety& compliance with industry standards. Explosion proof crane for sale!

Overhead Cranes Explosion-Proof Ratings: ExdIIBT4 vs. ExdIICT4

Overhead Cranes Explosion-Proof Ratings: ExdIIBT4 vs. ExdIICT4

May-20

Comparing explosion-proof crane ratings for safe use in hazardous gas environments with different gas groups & temperature classes.Get right exproof crane!

Choosing the Perfect Dual-Purpose Overhead Crane for Steel Plants

Choosing the Perfect Dual-Purpose Overhead Crane for Steel Plants

May-19

A practical guide to selecting the right dual-purpose overhead crane that improves efficiency, saves space, and boosts steel plant productivity.

Inside Explosion-Proof Bridge Cranes: Cabling, Control, Braking

Inside Explosion-Proof Bridge Cranes: Cabling, Control, Braking

May-16

Explore key design elements ensuring safety and reliability in hazardous areas through specialized cabling, controls, and braking systems.

Technical Guide: QB Explosion-Proof Double Girder Overhead Cranes

Technical Guide: QB Explosion-Proof Double Girder Overhead Cranes

May-16

Explore specifications, features, and safety standards of QB explosion-proof overhead cranes designed for hazardous environments from 5 to 75 tons.

Get a quote    Energy-Saving | Space-Saving | Cost-Efficient | CE/ISO/EX

Inquire Yuantai Crane Now

Need Latest Crane Price? Please leave us the required Crane's Capacity, Lifting Height, Span, Travelling Length & Voltage for Quick Quotation. Yuantai Crane www.bettercrane.com